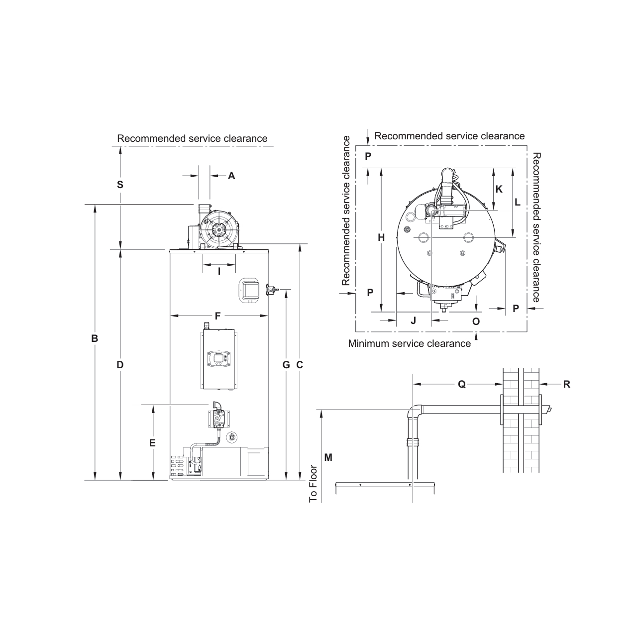
The Andrews Water Heater ECOflo COMPACT is a high‑efficiency, floor‑standing condensing storage water heater engineered for installations where space is restricted.
Designed to tackle demanding hot‑water requirements, it delivers reliable performance in a compact footprint.





